Установка и подключение

Опасно

Пренебрежение приведенными ниже указаниями может привести к летальному исходу или травмам!

  • Установка и подключение зарядных станций и контроллеров должна осуществляться квалифицированным персоналом, имеющим группу по электробезопасности не ниже III.

  • Некорректная установка и настройка зарядных станций и контроллеров может спровоцировать как повреждение зарядной станции, так и аккумулятора электромобиля.

  • Запрещается установка и эксплуатация зарядных станций и контроллеров вблизи взрывоопасных, легковоспламеняющихся материалов, химикатов и агрессивных веществ, горючих материалов и химикатов.

  • Водопроводные и электрические коммуникации должны отсутствовать в зоне размещения зарядных станций.

  • Подключение зарядных станций и контроллеров осуществляется при отсутствии напряжения в электросети.

Внимание

  • Рекомендуется размещать зарядных станции под навесом во избежание попадания осадков.

  • После монтажа ЗС AC 1 new необходимо проверить затяжку всех контактных резьбовых соединений согласно табл. 58.

Настенный монтаж

  1. Обеспечить минимальное расстояние до близлежащих объектов, необходимое для эксплуатации и технического обслуживания. Рекомендуемые минимальные расстояния при настенном монтаже показаны на рис. 24.

../_images/installspace_ac1_new.png

рис. 24 Рекомендуемые минимальные расстояния для установки ЗС АС 1 new

  1. Приложить опору к стене, осуществить разметку отверстий для крепежа, просверлить четыре отверстия диаметром 7 мм.

../_images/mounting_holes_ac1_new.png

рис. 25 Отверстия для крепежа

  1. Закрепить опору и кронштейн на стене дюбелями 7х40 в соответствии с рис. 26.

../_images/installation_supporting_structure_ac1_new.png

рис. 26 Монтаж опоры и кронштейна ЗС AC 1 new

  1. Установить корпус ЗС АС 1 new на кронштейн и прикрутить его снизу одним винтом М6

  2. Установить крышку на корпус станции и прикрутить её четырьмя винтами М6 согласно рис. 27.

../_images/installation_bracket_ac1_new.png

рис. 27 Установка ЗС АС 1 new на кронштейн

  1. Завести кабель питания в корпус ЗС АС 1 через гермовод снизу или через отверстие в задней стенке корпуса. Подключить провод заземления к жёлто-зелёной схеме, расположенной около вводного автомата. Рекомендованное сечения кабеля – Cu 10 мм2, Al 16 мм2. Расположение контактов (нейтраль, фазы) может отличаться в зависимости от типа используемого диффавтомата. При подключении следует руководствоваться маркировкой на диффавтомате, момент затяжки винтов 2,5 Н∙м.

../_images/final_installation_ac1_new.png

рис. 28 Подключение кабеля питания и провода заземления ЗС AC 1 new

  1. Схема подключения электропитания представлена рис. 29.

../_images/ac1_new_connection.png

рис. 29 Подключение электропитания

  1. Проверить затяжку всех контактных резьбовых соединений согласно табл. 58.

Напольный монтаж на стойке

  1. Обеспечить минимальное расстояние до близлежащих объектов, необходимое для эксплуатации и технического обслуживания. Рекомендуемые минимальные расстояния при напольном монтаже показаны рис. 30.

../_images/installspace_ac1_new_stand.png

рис. 30 Рекомендуемые минимальные расстояния для установки напольной ЗС АС 1 new

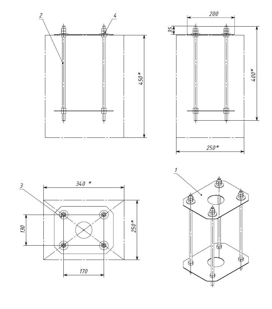
  1. Собрать «Каркас монтажный» в соответствии с рис. 31. Он состоит из:

  • поз. 1 – шпилька М12х400 – 4 шт.;

  • поз. 2 – гайка М12 – 20 шт.;

  • поз. 3 – шайба широкая 13 – 4 шт.;

  • поз. 4 – пластина основания СТРМ.039.20.10.301 – 2 шт.

../_images/montkit_ac1_new_stand.png

рис. 31 Каркас монтажный

  1. Рекомендуемые размеры для ямы — 250х340х450 мм, показаны на рисунке 12 штрихпунктирной линией.

  2. Перед заливкой бетона произвести песчаную подсыпку и утрамбовать её таким образом, чтобы после установки каркаса в яму, пластина основания СТРМ.039.20.10.301 находилась над поверхностью земли.

  3. Обеспечить вывод кабелей в гофрированной трубе: силовой кабель — обязательно, кабель Ethernet — при наличии такой необходимости. Длина выступающей части кабелей над уровнем земли должна быть не менее 370 мм.

  4. Залить яму бетоном до уровня земли. Рекомендуемая марка бетона для заливки фундамента — М250.

../_images/beton.png

рис. 32 Заливка фундамента

  1. Если отсутствует возможность заливки фундамента и поверхность для установки зарядной станции окончательно сформирована (уложена плитка, залито бетонное основание, уложено асфальтное покрытие), использовать пластину основания СТРМ.039.20.10.301. При помощи перфоратора со сверлом диаметром 14 мм просверлить отверстия глубиной 400 мм. Используя химический анкер, забить шпильки в отверстия.

../_images/perfo.png

рис. 33 Установка шпилек

  1. После полного застывания бетона либо химического анкера открутить верхние гайки от шпилек и снять шайбы. Установить ЗС AC 1 на шпильки, поместить шайбы на шпильки и затянуть первые четыре гайки с усилием 80 Н∙м. Затем законтрить их вторыми гайками с тем же усилием.

../_images/stand_connection.png

рис. 34 Корректная установка ЗС АС 1 new

  1. Выполнить подключение станции к электрической сети и интернету. Подключение осуществляется по пятипроводной схеме. Проводники (фазные, нулевой и заземление) подключить к проходным клеммам. Рекомендованное сечение кабеля – Cu 10 мм2, Al 16 мм2.

../_images/power_supply_diagram.png

рис. 35 Схема подключения ЗС АС 1 new

  1. Проверить затяжку всех контактных резьбовых соединений согласно табл. 58.